
楔式閘閥應用范圍:
楔式閘閥廣泛適用于石油化工,火力發電廠等油品、水蒸氣管路上作接通或截斷管路中介質的啟閉裝置。
在各種類型的閥門中,閘閥是應用最廣泛的一種。它一般只適用于全開或全閉,不能作調節和節流使用。
楔式閘閥用在對閥門的外形尺寸沒有嚴格要求,而且使用條件又比較苛刻的場合。如高溫高壓的工作介質,要求關閉件要保證長期密封的情況下等。
通常,使用條件或要求密封性能可靠,高壓,高壓截止(壓差大)、低壓截止(壓差小),低噪聲、有氣穴和汽化現象、高溫介質、低溫(深冷)時,推薦使用楔式閘閥。如電力工業、石油煉制、石油化工、海洋石油、城市建設中的自來水工程和污水處理工程,化工等領域中應用較多。
楔式閘閥結構特點:
1、結構緊湊、設計合理、閥門剛性好、通道流暢,流量系數小
2、密封面采用不銹鋼和硬質合金,使用壽命長
3、采用柔性石墨填料、密封可靠,操作輕便靈活
4、驅動方式為手動、氣動、電動、齒輪傳動
5、結構形式為彈性楔式單閘板、剛性楔式單閘板雙閘板型式
楔式閘閥標準規范:
設計制造標準:GB/T 12234-2007
結構長度標準:GB/T 12221-2005
連接法蘭標準:GB/T 9113
壓力溫度等級:GB/T 12224-2005
試驗檢驗標準:GB/T 13927-2008
楔式閘閥零件材料與工況:
閥體/閥蓋 |
ZGICr18Ni9Ti |
ZG00Cr18Ni10 |
ZG1Cr18Ni12M02Ti |
ZG00Cr17Ni14M02 |
WCB |
零件名稱 |
ZGICr18Ni9Tit系列 |
ZG00Cr18Ni10系列 |
ZG1Cr18Ni12M02Ti系列 |
ZG00Cr17Ni14M02系列 |
WCB系列 |
閘板 |
ZGICr18Ni9Ti |
ZG00Cr18Ni10 |
ZG1Cr18Ni12M02Ti |
ZG00Cr17Ni14M02 |
1Cr13 |
閥桿 |
1Cr18Ni9Ti |
00Cr18Ni10 |
1Cr18Ni12M02Ti |
00Cr17Ni14M02 |
1Cr13 |
填料 |
PTFE編織 |
PTFE編織 |
PTFE編織 |
PTFE編織 |
石墨 |
墊片 |
304L+PTFE |
304L+PTFE |
316+PTFE |
316L+PTFE |
石墨 |
壓蓋 |
ZGICr18Ni9Ti |
ZG00Cr18Ni10 |
ZG1Cr18Ni12M02Ti |
ZG00Cr17Ni14M02系列 |
WCB |
填料壓環 |
1Cr18Ni9Ti |
00Cr18Ni10 |
1Cr18Ni12M02Ti |
00Cr17Ni14M02 |
1Cr13 |
螺栓 |
1Cr17Ni2 |
1Cr17Ni2 |
1Cr17Ni2 |
1Cr17Ni2 |
35CrMoA |
螺母 |
1Cr18Ni9Ti |
1Cr18Ni9Ti |
1Cr18Ni9Ti |
1Cr18Ni9Ti |
45 |
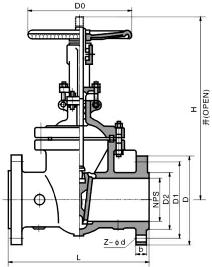
楔式閘閥主要尺寸結構圖及重量:
楔式閘閥-1.6MPa主要連接尺寸
尺寸 |
DN |
15 |
20 |
25 |
32 |
40 |
50 |
65 |
80 |
100 |
125 |
150 |
200 |
250 |
300 |
350 |
400 |
450 |
500 |
600 |
L |
mm |
130 |
150 |
160 |
180 |
200 |
250 |
265 |
280 |
300 |
325 |
350 |
400 |
450 |
500 |
550 |
600 |
650 |
700 |
800 |
H |
mm |
175 |
180 |
210 |
210 |
350 |
358 |
373 |
435 |
500 |
614 |
674 |
818 |
1225 |
1415 |
1630 |
1780 |
2050 |
2181 |
2599 |
W |
mm |
180 |
180 |
200 |
200 |
200 |
240 |
240 |
280 |
320 |
360 |
360 |
400 |
450 |
500 |
500 |
600 |
720 |
720 |
720 |
楔式閘閥-2.5MPa主要連接尺寸
尺寸 |
DN |
15 |
20 |
25 |
32 |
40 |
50 |
65 |
80 |
100 |
125 |
150 |
200 |
250 |
300 |
350 |
400 |
450 |
500 |
600 |
L |
mm |
130 |
150 |
160 |
180 |
200 |
250 |
265 |
280 |
300 |
325 |
350 |
400 |
450 |
500 |
550 |
600 |
650 |
700 |
800 |
H |
mm |
175 |
180 |
210 |
210 |
350 |
358 |
373 |
435 |
500 |
614 |
674 |
818 |
1225 |
1415 |
1630 |
1780 |
2050 |
2181 |
2599 |
W |
mm |
180 |
180 |
200 |
200 |
200 |
240 |
240 |
280 |
320 |
360 |
360 |
400 |
450 |
500 |
500 |
600 |
720 |
720 |
720 |
楔式閘閥-4.0MPa主要連接尺寸
尺寸 |
DN |
15 |
20 |
25 |
32 |
40 |
50 |
65 |
80 |
100 |
125 |
150 |
200 |
250 |
300 |
350 |
400 |
L |
mm |
130 |
150 |
160 |
180 |
200 |
250 |
280 |
310 |
350 |
400 |
450 |
550 |
650 |
750 |
850 |
950 |
H |
mm |
175 |
180 |
210 |
210 |
350 |
358 |
373 |
435 |
500 |
614 |
674 |
818 |
1225 |
1415 |
1630 |
1780 |
W |
mm |
180 |
180 |
200 |
200 |
200 |
240 |
240 |
280 |
320 |
360 |
360 |
400 |
450 |
500 |
500 |
600 |
楔式閘閥-6.4MPa主要連接尺寸
尺寸 |
DN |
15 |
20 |
25 |
32 |
40 |
50 |
65 |
80 |
100 |
125 |
150 |
200 |
250 |
300 |
350 |
400 |
L |
mm |
170 |
190 |
210 |
230 |
240 |
250 |
280 |
320 |
350 |
400 |
450 |
550 |
650 |
750 |
850 |
950 |
H |
mm |
175 |
180 |
210 |
230 |
350 |
359 |
373 |
435 |
500 |
614 |
674 |
818 |
970 |
1145 |
1280 |
1450 |
W |
mm |
120 |
120 |
140 |
160 |
200 |
240 |
280 |
320 |
360 |
400 |
400 |
450 |
560 |
640 |
800 |
800 |
楔式閘閥-10.0MPa主要連接尺寸
尺寸 |
DN |
15 |
20 |
25 |
32 |
40 |
50 |
65 |
80 |
100 |
125 |
150 |
200 |
250 |
L |
mm |
170 |
190 |
210 |
230 |
240 |
250 |
280 |
310 |
350 |
400 |
450 |
550 |
650 |
H |
mm |
175 |
180 |
210 |
230 |
350 |
359 |
373 |
435 |
500 |
614 |
674 |
818 |
970 |
W |
mm |
120 |
120 |
160 |
180 |
240 |
280 |
320 |
360 |
400 |
450 |
560 |
640 |
720 |
楔式閘閥-16.0MPa主要連接尺寸
尺寸 |
DN |
15 |
20 |
25 |
32 |
40 |
50 |
65 |
80 |
100 |
125 |
150 |
200 |
L |
mm |
170 |
190 |
210 |
230 |
240 |
300 |
340 |
390 |
450 |
525 |
600 |
750 |
H |
mm |
175 |
180 |
210 |
230 |
350 |
359 |
373 |
435 |
500 |
614 |
674 |
818 |
W |
mm |
120 |
120 |
140 |
160 |
200 |
240 |
280 |
320 |
360 |
400 |
400 |
450 |
售后服務承諾
對于貴公司在雄工閥門訂購閥門產品,我司在售后服務方面作如下承諾:
一、我公司對產品質量實行三包,即:包質、包換、保修;
二、合同簽訂后,保證保質、保量,按時交貨;
三、本公司確保所提供閥門產品達到合同指標
四、對于需方的技術咨詢,隨時給予解答;
當接到用戶反應質量問題的信函或電話后,保證24小時內作出答復解決問題。
訂貨流程
- 客戶采購清單請傳真至 021-60714833,或來電咨詢 021-31263381。
- 收到客戶采購清單,為客戶提供閥門型號選型與報價(價格清單)。
- 具體商定:交貨期、特殊要求等事宜。
訂貨須知
- 客戶對產品有特殊要求,須在訂貨合同中提供以下說明:
- 結構長度
- 連接形式
- 公稱直徑、全通徑、縮徑、管道尺寸
- 運用介質及溫度、壓力范圍
- 實驗、檢驗標準及其他要求
- 本場可根據客戶特殊要求配置各類驅動裝置。
- 如由客戶提供確定的閥門類型和型號時,客戶應正確說明其型號的含義和要求,在供需雙方理解一致的條件下簽訂合同。
服務承諾
專業制造、專業服務,雄工為你創造更多價值
不斷提升服務質量,精益求精,“真誠的服務”是雄工永恒的主題。雄工嚴格按照 ISO9001-2000 質量體系認證要求,質量嚴格把關,責任到人,確保生產、銷售、服務的健康運行。加強與用戶溝通,竭誠為廣大客戶提供優質產品,至善至美服務,特此我廠做出如下承諾:
產品標準
產品嚴格按照中國 GB、HG 標準和美國 API 等標準設計、制造、驗收。密封面硬度達到國家規定要求,寬度超過國家標準。
售前服務
產品介紹,技術交流,非標產品設計,疑難解答
售中服務
- 守信合同,保證及時供貨,隨時保持與客戶聯系
- 對特殊或復雜的產品,我廠安排技術人員對用戶進行產品使用、故障排除、調式及維修進行培訓和指導。
售后服務
- 雄工產品質保期為自出廠起 12 個月,實行“三包”服務(包退、包換、包修)。
- 產品在使用中我廠定期組織技術、檢查人員進行訪問,征詢用戶對產品質量、使用狀況、改進意見等方面的反饋,以便進一步提高產品質量。
- 對用戶投訴產品質量問題,快速做出反映,售后服務人員在 24-36 小時(省外 48 小時)趕赴現場。
- 對售后服務,要求用戶填寫服務后的質量反饋表,并做出鑒定意見,一邊提高雄工的服務質量