硬密封球閥,金屬硬密封球閥關閉件球體繞閥體中心線作旋轉來達到開啟、關閉的一種閥門,密封件嵌于不銹鋼閥座內,金屬閥座尾端設有彈簧,當密封面磨損或者燒毀時,在彈簧作用下推動閥座與球體形成金屬密封。其具有獨特的自動泄壓功能,當閥門中腔介質壓力超過彈簧預緊力,出口端閥座后退脫離球體,達到自動泄壓效果,泄壓后閥座自動復位,適用于水、溶劑、酸和天然氣等工作介質,而且還適用于工作條件惡劣的介質,如氧氣、過氧化氫、甲烷等,在各行業得到廣泛的應用。
硬密封球閥,金屬硬密封球閥設計標準:
設計和制造標準按照: ASME B16.34,API6D等;
結構長度按照: ASME B16.10;
連接端尺寸按照:ASME B16.5,ASME B16.25;
檢驗和測試按照: API598;
防火設計按照:API607;
硬密封球閥的球體與閥座完全采用金屬對金屬的密封方式,為了確保硬密封球閥在各種溫度和壓力下的可靠密封,針對用戶的不同使用工況和要求,可以采用多種球體和閥座的硬化技術,包括超音速噴涂、鎳基噴焊、表面特殊硬化、硬質合金噴焊等,球體和閥座表面硬度一般可達到HRC60以上,高可達HRC74以上。密封面材料耐溫可達540℃。金屬硬密封法蘭球閥材料的結合強度可以達到10000PSI以上,密封面材料還具有很好的耐磨擦、耐沖擊等性能。硬密封固定球閥能夠適用于絕大多數的苛刻工況條件。
防止閥門在高溫下的漲死
高溫工況下由于熱膨脹而容易引起球體與閥座的漲死,從而導致閥門無法開啟。屬硬密封球閥采用了碟簧或彈簧加載的密封結構,在高溫下零部件的熱膨脹可以被碟簧或彈簧所吸收,故能夠保證閥門在高溫下不會被漲死,并能夠在高溫下靈活啟閉。
優異的密封性能
采用球體研磨工藝,通過球體與研磨器具在空間不同方位的旋轉,使球體表面達到圓度和光潔度,閥門的密封性能完全達到標準要求。
完全的防火結構設計
閥門的密封面采用金屬對金屬密封結構,填料采用柔性石墨,墊片采用不銹鋼+柔性石墨結構。因此,閥門即使在火災情況下也能確保可靠的密封。
自然的防靜電結構設計
金屬硬密封球閥的閥體、閥座、球體等金屬零件緊密接觸,自然形成了靜電通道。因此,金屬硬密封球閥不需要設置防靜電裝置。
雙阻斷及泄放功能
硬密封固定球閥一般采用球前閥座密封結構。金屬硬密封固定球閥的兩個閥座能切斷進口端和出口端的介質,實現雙阻斷功能。當球閥關閉時,即使閥門進出口兩端同時受壓,閥門中腔和兩端通道也可以被相互阻斷,中腔內的剩余介質可以通過泄放閥排出。
硬密封球閥,金屬硬密封球閥實物圖

主要零件材料 Materials Of main Parts
閥體 Body |
304 |
ZG1Cr18Ni9Ti |
CF8 |
CF3 |
ZG1Cr18Ni12Mo2Ti |
CF8M |
CF3M |
球體閥桿 Ball Stem |
304 |
1Cr18Ni9Ti |
304 |
304L |
1Cr18Ni12Mo2Ti |
316 |
316L |
閥座 Seat |
-29℃~300℃(對位聚笨 PPL) -29℃~550℃(金屬) |
墊片 Shim |
不銹鋼/柔性石墨Stainless Steel/flexible Graphite 齒形墊片Tooth Profile Gasket |
閥桿座 Stem Seat |
不銹鋼/柔性石墨 Stainless Steel/Flexible Graphite |
填料 Packing | 柔性石墨 Enhanced Flexible Graphite |
填料壓蓋 Gland |
|
1Cr18Ni9Ti |
304 |
304L |
1Cr18Ni12Mo2Ti |
316 |
316L |
溫度 Temperature |
-29℃~300℃(對位聚笨 PPL) -29℃~550℃(金屬硬密封) |
介質 Medium |
水蒸汽油品氣體 Water steam Oil goods |
硝酸類 Nitric Acid |
強氧化介質 strongey oxidable medium |
醋酸類 Acetic Acid |
尿素類Urea |
主要外型尺寸 Main outer Size
1.6MPa |
DN |
L |
D |
D1 |
D2 |
b |
n-φd |
H |
D0 |
凸面法蘭 RF Q41H Q41PPL 16C 16P 16R |
15 |
130 |
95 |
65 |
45 |
14 |
4-14 |
78 |
140 |
20 |
140 |
105 |
75 |
55 |
14 |
4-14 |
84 |
160 |
25 |
150 |
115 |
85 |
65 |
14 |
4-14 |
95 |
180 |
32 |
165 |
135 |
100 |
78 |
16 |
4-18 |
150 |
250 |
40 |
180 |
145 |
110 |
85 |
16 |
4-18 |
150 |
300 |
50 |
200 |
160 |
125 |
100 |
18 |
4-18 |
170 |
350 |
65 |
220 |
180 |
145 |
120 |
20 |
4-18 |
195 |
350 |
80 |
250 |
195 |
160 |
135 |
20 |
8-18 |
215 |
400 |
100 |
280 |
215 |
180 |
155 |
20 |
8-18 |
250 |
500 |
125 |
320 |
245 |
210 |
185 |
22 |
8-18 |
265 |
600 |
150 |
360 |
280 |
240 |
210 |
24 |
8-23 |
270 |
800 |
200 |
400 |
335 |
295 |
265 |
26 |
12-23 |
330 |
1200 |
2.5MPa |
15 |
130 |
95 |
65 |
45 |
16 |
4-14 |
103 |
140 |
凸面法蘭 RF Q41H Q41PPL 25 25P 25R |
20 |
140 |
105 |
75 |
55 |
16 |
4-14 |
112 |
160 |
25 |
150 |
115 |
85 |
65 |
16 |
4-14 |
123 |
180 |
32 |
165 |
135 |
100 |
78 |
18 |
4-18 |
150 |
250 |
40 |
180 |
145 |
110 |
85 |
18 |
4-18 |
156 |
300 |
50 |
200 |
160 |
125 |
100 |
20 |
8-18 |
172 |
350 |
65 |
220 |
180 |
145 |
120 |
22 |
8-18 |
197 |
350 |
80 |
250 |
195 |
160 |
135 |
22 |
8-23 |
222 |
400 |
100 |
280 |
230 |
190 |
160 |
24 |
8-23 |
253 |
500 |
125 |
320 |
270 |
220 |
188 |
28 |
8-25 |
275 |
600 |
150 |
360 |
300 |
250 |
218 |
30 |
8-25 |
286 |
800 |
200 |
400 |
360 |
310 |
278 |
34 |
12-25 |
340 |
1200 |
主要外形尺寸 Size Main Dimensions
4.0MPa |
DN |
L |
D |
D1 |
D2 |
D6 |
b |
n-φd |
H |
D0 |
凹凸法蘭 MFM Q41H Q41PPL 40 40P 40R |
15 |
130 |
95 |
65 |
45 |
40 |
16 |
4-14 |
103 |
140 |
20 |
140 |
105 |
75 |
55 |
51 |
16 |
4-14 |
112 |
160 |
25 |
150 |
115 |
85 |
65 |
58 |
16 |
4-14 |
123 |
160 |
32 |
180 |
135 |
100 |
78 |
66 |
18 |
4-18 |
150 |
250 |
40 |
200 |
145 |
110 |
85 |
76 |
18 |
4-18 |
156 |
250 |
50 |
220 |
160 |
125 |
100 |
88 |
20 |
4-18 |
172 |
350 |
65 |
250 |
180 |
145 |
120 |
110 |
22 |
8-18 |
197 |
350 |
80 |
280 |
195 |
160 |
135 |
121 |
22 |
8-18 |
222 |
450 |
100 |
320 |
230 |
190 |
160 |
150 |
24 |
8-23 |
253 |
450 |
125 |
400 |
270 |
220 |
188 |
176 |
28 |
8-25 |
275 |
600 |
150 |
400 |
300 |
250 |
218 |
204 |
30 |
8-25 |
286 |
800 |
200 |
550 |
375 |
320 |
282 |
260 |
38 |
12-30 |
340 |
1200 |
6.4MPa |
15 |
165 |
105 |
75 |
55 |
40 |
18 |
4-14 |
105 |
140 |
凹凸法蘭 MFM Q41H Q41PPL 64 64P 64R |
20 |
190 |
125 |
90 |
68 |
51 |
20 |
4-18 |
125 |
160 |
25 |
216 |
135 |
100 |
78 |
58 |
22 |
4-18 |
135 |
250 |
32 |
229 |
150 |
110 |
82 |
66 |
24 |
4-23 |
150 |
350 |
40 |
241 |
165 |
125 |
95 |
76 |
24 |
4-23 |
165 |
350 |
50 |
292 |
175 |
135 |
105 |
88 |
26 |
4-23 |
175 |
450 |
65 |
330 |
200 |
160 |
130 |
110 |
28 |
8-23 |
200 |
450 |
80 |
356 |
210 |
170 |
140 |
121 |
30 |
8-23 |
210 |
600 |
100 |
432 |
250 |
200 |
168 |
150 |
32 |
8-25 |
250 |
700 |
125 |
508 |
295 |
240 |
202 |
176 |
36 |
8-30 |
295 |
1100 |
150 |
559 |
340 |
280 |
240 |
204 |
38 |
8-34 |
340 |
1500 |
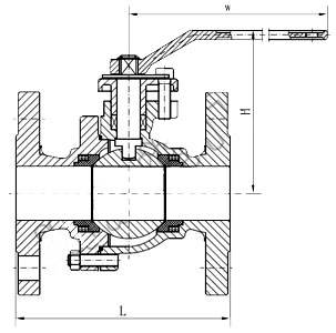
硬密封球閥結構圖
硬密封球閥,金屬硬密封球閥參數尺寸,結構圖:
售后服務承諾
對于貴公司在雄工閥門訂購閥門產品,我司在售后服務方面作如下承諾:
一、我公司對產品質量實行三包,即:包質、包換、保修;
二、合同簽訂后,保證保質、保量,按時交貨;
三、本公司確保所提供閥門產品達到合同指標
四、對于需方的技術咨詢,隨時給予解答;
當接到用戶反應質量問題的信函或電話后,保證24小時內作出答復解決問題。
訂貨流程
- 客戶采購清單請傳真至 021-60714833,或來電咨詢 021-31263381。
- 收到客戶采購清單,為客戶提供閥門型號選型與報價(價格清單)。
- 具體商定:交貨期、特殊要求等事宜。
訂貨須知
- 客戶對產品有特殊要求,須在訂貨合同中提供以下說明:
- 結構長度
- 連接形式
- 公稱直徑、全通徑、縮徑、管道尺寸
- 運用介質及溫度、壓力范圍
- 實驗、檢驗標準及其他要求
- 本場可根據客戶特殊要求配置各類驅動裝置。
- 如由客戶提供確定的閥門類型和型號時,客戶應正確說明其型號的含義和要求,在供需雙方理解一致的條件下簽訂合同。
服務承諾
專業制造、專業服務,雄工為你創造更多價值
不斷提升服務質量,精益求精,“真誠的服務”是雄工永恒的主題。雄工嚴格按照 ISO9001-2000 質量體系認證要求,質量嚴格把關,責任到人,確保生產、銷售、服務的健康運行。加強與用戶溝通,竭誠為廣大客戶提供優質產品,至善至美服務,特此我廠做出如下承諾:
產品標準
產品嚴格按照中國 GB、HG 標準和美國 API 等標準設計、制造、驗收。密封面硬度達到國家規定要求,寬度超過國家標準。
售前服務
產品介紹,技術交流,非標產品設計,疑難解答
售中服務
- 守信合同,保證及時供貨,隨時保持與客戶聯系
- 對特殊或復雜的產品,我廠安排技術人員對用戶進行產品使用、故障排除、調式及維修進行培訓和指導。
售后服務
- 雄工產品質保期為自出廠起 12 個月,實行“三包”服務(包退、包換、包修)。
- 產品在使用中我廠定期組織技術、檢查人員進行訪問,征詢用戶對產品質量、使用狀況、改進意見等方面的反饋,以便進一步提高產品質量。
- 對用戶投訴產品質量問題,快速做出反映,售后服務人員在 24-36 小時(省外 48 小時)趕赴現場。
- 對售后服務,要求用戶填寫服務后的質量反饋表,并做出鑒定意見,一邊提高雄工的服務質量